1、河北省級開發區—定興金臺開發區
2、開發區總面積21.7平方公里,已建成11平方公里,目前入駐企業160余家,規上企業35家
3、產業基礎:中國休閑食品之都,以馬大姐、喜之郎、西麥燕麥、五合窖酒業及槐茂醬菜為支柱;中國定興汽車及零部件制造產業城,現擁有汽車及零部件企業30余家,以長城內燃機、恒天大迪汽車為龍頭企業,中科鋰電池、長城增壓器和平衡軸為新動力的汽車及零部件產業,2011年被省政府評定為“汽車及零部件產業集群”;叫響“研發基地在北京,成果轉化在定興”為口號,以長峰金鼎、伍強科技、紫光新銳為龍頭的高端裝備制造產業城;依托天浩制藥、智同制藥,引進國內醫藥行業知名企業,積極把握京津冀協同發展戰略機遇,打造生物醫藥產業城
4、交通優勢:北距北京89公里,東距天津122公里,南到石家莊176公里,京廣鐵路,京港澳高速,107國道等主干線貫穿全境,交通便利,,兩小時內直達海陸空
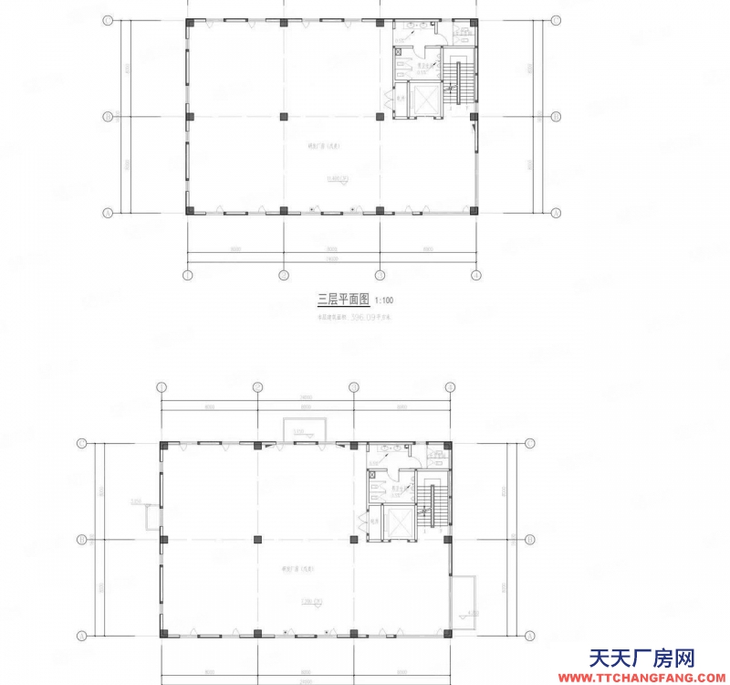
5、項目特色:環京區域獨特兩層廠房,位置優,價格低,環評寬松,手續全,工程進度快
6、1000平準現房,現二次結構已完工,歡迎企業洽談咨詢











