一、項目賣點
1、江蘇省內唯一潤滑油復配產業園區,可準入、可立項,可投產。目前已有40余家潤滑油企業進駐,首批潤滑油企業已完成立項,并取得產證;
2、可根據潤滑油企業的需求,自由定制荷載、面積、層高、層數等;
3、送院子。每戶贈送院子,面積約300平米-600平米,方便停車、裝卸貨物。獨門獨院;
4、門檻低。稅收15萬/畝;
5、實景現房,即買即辦產證。
(配產證圖及立項備案證)
二、產品基礎信息
【項目規?!浚嚎傉嫉?/span>366畝,總建筑面積約32萬方。
【產品】:兩種產品,一種標準廠房;一種定制廠房。
【消防】:丙類。
【付款方式】:首付3成,按揭貸款10年。
【項目主導產業】:以復配類新材料(潤滑油)為主,以橡塑制品、通用設備制造、電氣機械為輔(園區已獲大環評)。
(配項目產品分配圖)
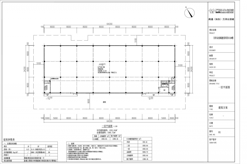
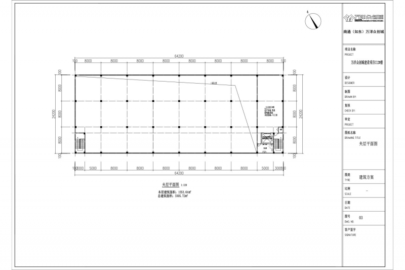
三、戶型產品
1、定制廠房: 可根據潤滑油企業需求,對用電、載重、層高、層數、貨梯、吊裝口、牛腿桁車等進行定制。
(兩層定制戶型圖)
2、標準廠房(雙拼/獨棟):面積1800-4800㎡不等
(標準廠房戶型圖)
四、潤滑油企業準入、立項流程
(配準入、立項流程圖)
五、項目配套
【園區內產業配套】:園區規劃有20個約250m3的基礎油罐以及甲類倉庫中轉站,為園區內潤滑油企業提供便利的產業服務;
【園區內生活配套】:生活超市、中央食堂、員工宿舍、商務服務和生活娛樂設施(9月底園區配套全面投入使用);
【區域生活配套】:洋口幼兒園、洋口小學、洋口初級中學,滿足企業員工子女就近入學;林克斯溫泉小鎮、國際標準高爾夫球場、洋口醫院等城市配套設施俱全。
【區域基礎設施配套】:
熱電廠:集中供熱能力700噸/小時;
集中式污水處理廠:日處理能力4萬噸;
危險廢物處理中心:年處理能力6萬噸;
危險廢物填埋場:年填埋能力2萬噸。
(配儲罐效果圖、生活配套圖)
六、區位交通
【陸路交通】:G328國道、洋騎線快速路(規劃中)、啟揚高速、臨海高速(規劃中)、南通至小洋口高速(規劃中)
【鐵路鏈條】:海洋鐵路、洋呂鐵路、三洋鐵路、通蘇嘉甬鐵路如東延伸段(規劃中)、如通蘇湖鐵路(規劃中)
【空中走道】:南通興東機場、南通新機場(規劃中)
【港口物流】:洋口港、通州灣
(配交通圖)
七、項目實景圖
(配實景圖、實景視頻)













